Pulleys Squealing?

hogjowl

Idiot™
Cleaning Professional
Joined
Oct 7, 2006
Messages
50,044
In regards to belts, I can't recollect any of my 22 truck mounts ever being a joyous procedure in maintaining or replacing of them..

If I could do it over again I would get one of these coupler designs that can be changed out in a matter of minutes and just do it once a year or be ready to do so if and when it fails on site
I’m still waiting on reliable feedback on those Sammy Sales units.
 
  • Like
Reactions: BIG WOOD

Dwain Ray

Supportive Member
Cleaning Professional
Joined
Jul 22, 2020
Messages
1,175
The only area where belts are mentioned is routine maintenance checklists where it says the check the water pump belt for wear, and then replace the water pump belt every 300 hours, and to check the blower belt for wear. No how-to's on anything for either of the belts. I sense that they think I know how, or can bring it to someone who does.

I'll do some more searching for video assistance later today, but if I can't find anything I'll just have to go for it and hope I don't make things worse in the process.
300 hours seems to not be very long for pump belts???? The one i have on frankinstien has been on since new 2.5years and just over 1,300 hours . With my blower, i tried 3 different belts just to see how long they would last, standard v belts 110 hours , kevlar belt 11hours, cogged belts 1,231 so far and still in good shape inspected every 100 hours. I don't know much about the geared belt driving your blower but there should be away to adjust them. All the blowers ive had run v belts. Im going down to see my supplier today(yes sunday) and drop off my rx20 nexgen gearbox. The small pinion gear snappedinhalf( hopefully he can badger hydramaster into repairing or replacing it)hes a close friend and has installed/ and works on hydramaster's for many years ill ask about your blower belt and let you know what he says

20221108_170827.jpg 20250705_180754.jpg 20250705_180802.jpg
 
  • Love
Reactions: Bryce C

Bryce C

DFW
Cleaning Professional
Joined
Feb 9, 2024
Messages
1,402
Name
Bryce
Someone told me that you have to remove a pulley to get the
300 hours seems to not be very long for pump belts???? The one i have on frankinstien has been on since new 2.5years and just over 1,300 hours . With my blower, i tried 3 different belts just to see how long they would last, standard v belts 110 hours , kevlar belt 11hours, cogged belts 1,231 so far and still in good shape inspected every 100 hours. I don't know much about the geared belt driving your blower but there should be away to adjust them. All the blowers ive had run v belts. Im going down to see my supplier today(yes sunday) and drop off my rx20 nexgen gearbox. The small pinion gear snappedinhalf( hopefully he can badger hydramaster into repairing or replacing it)hes a close friend and has installed/ and works on hydramaster's for many years ill ask about your blower belt and let you know what he says

View attachment 131610 View attachment 131611 View attachment 131612

That sure did snap off. About my blower, someone told me that removing the pulley is how to remove the belt, and that somehow the pulley can be adjusted for tension and alignment once it is off. Replacing the belt by removing the pulley seems like the path of least resistance. It is a taper fit pulley with a split collar, I think that will be easy enough. I am looking for a manual for my blower as I'm sure it would say something about adjusting it for tension and alignment it. My blower is a Tuthill 4007-22R3-7963 model. Interlink shows it as the Tuthill 4007x blower on their site. The only dang manual I can find is for a Tuthill CP series 4007 blower, which is blue (mine is black), has only 1 shaft (mine has 2 shafts), and seems too different. The Hydramaster CDS 4.8 manual says they send people a CD that is the appropriate Tuthill 4007 manual when they purchase the machine. Coming up dry everywhere I am looking for it...
 

Dwain Ray

Supportive Member
Cleaning Professional
Joined
Jul 22, 2020
Messages
1,175
Someone told me that you have to remove a pulley to get the


That sure did snap off. About my blower, someone told me that removing the pulley is how to remove the belt, and that somehow the pulley can be adjusted for tension and alignment once it is off. Replacing the belt by removing the pulley seems like the path of least resistance. It is a taper fit pulley with a split collar, I think that will be easy enough. I am looking for a manual for my blower as I'm sure it would say something about adjusting it for tension and alignment it. My blower is a Tuthill 4007-22R3-7963 model. Interlink shows it as the Tuthill 4007x blower on their site. The only dang manual I can find is for a Tuthill CP series 4007 blower, which is blue (mine is black), has only 1 shaft (mine has 2 shafts), and seems too different. The Hydramaster CDS 4.8 manual says they send people a CD that is the appropriate Tuthill 4007 manual when they purchase the machine. Coming up dry everywhere I am looking for it...
Sorry, yesterday i forgot to ask my friend about your blower belt . I gave him a call this morning. He said that there is a mini driveshaft that drives the blower, it runs underneath it. There is a pillow block under each side held down by 2 bolts each. You loosen the 4 bolts and move the shaft to adjust the belts. There's not alot of adjustment and generally when the belt starts making noise he replaces it with a new one then adjusts it. Hope this makes sense and helps
 
  • Love
Reactions: Bryce C

Living The Dream

Member
Cleaning Professional
Joined
Oct 25, 2016
Messages
3,233
Name
Swani
Someone told me that you have to remove a pulley to get the


That sure did snap off. About my blower, someone told me that removing the pulley is how to remove the belt, and that somehow the pulley can be adjusted for tension and alignment once it is off. Replacing the belt by removing the pulley seems like the path of least resistance. It is a taper fit pulley with a split collar, I think that will be easy enough. I am looking for a manual for my blower as I'm sure it would say something about adjusting it for tension and alignment it. My blower is a Tuthill 4007-22R3-7963 model. Interlink shows it as the Tuthill 4007x blower on their site. The only dang manual I can find is for a Tuthill CP series 4007 blower, which is blue (mine is black), has only 1 shaft (mine has 2 shafts), and seems too different. The Hydramaster CDS 4.8 manual says they send people a CD that is the appropriate Tuthill 4007 manual when they purchase the machine. Coming up dry everywhere I am looking for it...
I'm not 100% sure, but I believe your blower is CP base model, but with some different variances. In one of my units I a Tuthill 4007 22r3 5874. I believe I have a manual someplace. I'll look tonight when I get home.
 
  • Love
Reactions: Bryce C

Bryce C

DFW
Cleaning Professional
Joined
Feb 9, 2024
Messages
1,402
Name
Bryce
I'm not 100% sure, but I believe your blower is CP base model, but with some different variances. In one of my units I a Tuthill 4007 22r3 5874. I believe I have a manual someplace. I'll look tonight when I get home.

That would be very helpful. Thanks bud!
 

Bryce C

DFW
Cleaning Professional
Joined
Feb 9, 2024
Messages
1,402
Name
Bryce
Sorry, yesterday i forgot to ask my friend about your blower belt . I gave him a call this morning. He said that there is a mini driveshaft that drives the blower, it runs underneath it. There is a pillow block under each side held down by 2 bolts each. You loosen the 4 bolts and move the shaft to adjust the belts. There's not alot of adjustment and generally when the belt starts making noise he replaces it with a new one then adjusts it. Hope this makes sense and helps

Thanks Dwain! I already ordered a new belt, $110 for the blower belt plus shipping! Hopefully I get 1000 hours out of it. I'll wait to attempt the adjustment until it arrives and I go to replace it with a new stiffer belt. Thank you for calling your friend and looking into this for me Dwain. I don't see the pillow block, unless this area I circled would be the 2 bolts on one side, with the adjustment in the center of them?

1000009695.jpg


1000009695.jpg
 

Dwain Ray

Supportive Member
Cleaning Professional
Joined
Jul 22, 2020
Messages
1,175
Thanks Dwain! I already ordered a new belt, $110 for the blower belt plus shipping! Hopefully I get 1000 hours out of it. I'll wait to attempt the adjustment until it arrives and I go to replace it with a new stiffer belt. Thank you for calling your friend and looking into this for me Dwain. I don't see the pillow block, unless this area I circled would be the 2 bolts on one side, with the adjustment in the center of them?

View attachment 131625

View attachment 131624
Best i can tell is this is the shaft he was talking about and it looks like it has a adjustable hold down screw at the top

Screenshot_20250707_170136_Chrome.jpg Screenshot_20250707_170451_Chrome.jpg Screenshot_20250707_170118_Chrome.jpg Screenshot_20250707_172333_Chrome.jpg
 
Last edited:
  • Like
Reactions: Bryce C and hogjowl

Bryce C

DFW
Cleaning Professional
Joined
Feb 9, 2024
Messages
1,402
Name
Bryce
Best i can tell is this is the shaft he was talking about and it looks like it has a adjustable hold down screw at the top

View attachment 131626 View attachment 131628 View attachment 131629 View attachment 131630

I see, that is the main drive shaft. That makes sense. If my Tuthill 4007 blower is a CP series and I just read the correct manual online then the blower can be adjusted as well by loosening 4 mounting bolts and sliding it on its base. I suppose now I'll just see which way appears easier. I bet your friend's method is since he has experience doing this and he mentioned adjusting the driveshaft.
 

Bryce C

DFW
Cleaning Professional
Joined
Feb 9, 2024
Messages
1,402
Name
Bryce
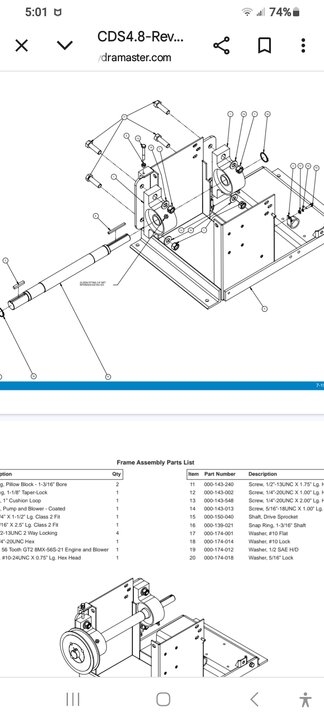
I found this in the 4007 Tuthill blower manual
1000009697.jpg
 

Dwain Ray

Supportive Member
Cleaning Professional
Joined
Jul 22, 2020
Messages
1,175
I see, that is the main drive shaft. That makes sense. If my Tuthill 4007 blower is a CP series and I just read the correct manual online then the blower can be adjusted as well by loosening 4 mounting bolts and sliding it on its base. I suppose now I'll just see which way appears easier. I bet your friend's method is since he has experience doing this and he mentioned adjusting the driveshaft.
That appears to be some sort of a jack shaft the main driveshaft comes off the clutch on the engines Serpentine belt
 

Bryce C

DFW
Cleaning Professional
Joined
Feb 9, 2024
Messages
1,402
Name
Bryce
That appears to be some sort of a jack shaft the main driveshaft comes off the clutch on the engines Serpentine belt

Oh I see. They were connected so I assumed they were the same thing. My mistake. I understand now. Thanks Dwain.
 

Dwain Ray

Supportive Member
Cleaning Professional
Joined
Jul 22, 2020
Messages
1,175
Oh I see. They were connected so I assumed they were the same thing. My mistake. I understand now. Thanks Dwain.
No problem. personally I really don't know these machines? However i do have a high mechanical aptitude and understand parts diagrams but i have to rely on my friend for advice on what im looking for so once he said how the belts are adjusted i went to the online owners manual parts list to make sense of what he was talking about but i myself have never done any of the procedures so please be aware that this is what all my advice is based on and not first hand experience.
 
  • Like
Reactions: Bryce C

Dwain Ray

Supportive Member
Cleaning Professional
Joined
Jul 22, 2020
Messages
1,175
To me this doesn't make sence when talking about blower drive belt because it not a v belt it is a geared belt (like a timing belt on a car) and because its geared it can't slip the only way thet makes sence to me is if its talking about the Serpentine belt or its instructions for a model that has v belts
 
  • Like
Reactions: Bryce C

Bryce C

DFW
Cleaning Professional
Joined
Feb 9, 2024
Messages
1,402
Name
Bryce
To me this doesn't make sence when talking about blower drive belt because it not a v belt it is a geared belt (like a timing belt on a car) and because its geared it can't slip the only way thet makes sence to me is if its talking about the Serpentine belt or its instructions for a model that has v belts

That makes sense to me to since you mentioned it. What actually causes a geared belt to squeal? I texted my friend that is tm technician and he said to squirt the blower belt with a little big of wd40. If the squealing stops then I know it is the blower belt, if it persists then I know the squealing is coming from the water pump belt. I was concerned about spraying anything on the blower belt and he assured me a small amount would be fine. I suppose it's because there are gears and it can't cause slipping?

Either way, the test worked. The blower belt stopped squealing as soon as wd40 hit it. Also, I noticed that upon starting the machine there was very little squealing. And as we finished our job today it was squealing very loudly. So it seems the belt warmed up and became looser, causing more squealing. Which seems to suggest a worn belt. But I still don't understand, why would a little slack in a geared belt cause it to squeal? It can't be slipping. And the belt looks visibly fine, no noticeable wear...
 

Bryce C

DFW
Cleaning Professional
Joined
Feb 9, 2024
Messages
1,402
Name
Bryce
There are 2 different pulleys on my blower. Only 1 is in use and that is the geared one. The other unused pulley is smaller and seems to take v belts. Different setups for different applications I suppose. So maybe your right and the instructions about tensioning the blower belt may be about the v belt, although the manual didn't specify that. But then again if the squealing is getting worse as my machine runs and the belt warms up/becomes looser, then it seems to me that low tension can possibly cause squealing, even in a geared belt?
 

Bryce C

DFW
Cleaning Professional
Joined
Feb 9, 2024
Messages
1,402
Name
Bryce
Nope you are right. The blower manual is speaking about v belts when it mentions the tensioning.
 

Bryce C

DFW
Cleaning Professional
Joined
Feb 9, 2024
Messages
1,402
Name
Bryce
The other belt is for the pump out.

My setup has a pump out, but it is an electric pump. It is an electromagnet pump just like my portables. So that may be for mechanical pumpouts on different setups?
 

Nate The Great

Member
Cleaning Professional
Joined
Mar 29, 2008
Messages
9,767
Name
Nate W.
My setup has a pump out, but it is an electric pump. It is an electromagnet pump just like my portables. So that may be for mechanical pumpouts on different setups?

It's for a gear-driven Jabsco pumpout.. If yours doesn't have a pumpout and pulley with a clutch magnet on it connected to a belt, then yours doesn't have one..
 

Bryce C

DFW
Cleaning Professional
Joined
Feb 9, 2024
Messages
1,402
Name
Bryce
It's for a gear-driven Jabsco pumpout.. If yours doesn't have a pumpout and pulley with a clutch magnet on it connected to a belt, then yours doesn't have one..

I suspect this large electric pump that is plumbed to the bottom of the recovery tank and to the recovery discharge port is my units alternative to a belt driven pump out.

1000009721.jpg
 
  • Like
Reactions: hogjowl

Latest posts

Back
Top Bottom